Pintor Imobiliário

Situação-problema 2:
  Leitura de planta baixa e cálculo de área

Representação ilustrativa de um homem pintando uma parede com um cabo extensor e um rolo. Ao seu lado, um balde de tinta.

Situação-problema 2:
  Leitura de planta baixa e cálculo de área

Role para baixo

Apresentação

Nesta situação-problema, você conhecerá as características e simbologias da planta baixa.

Além disso, você aprenderá a realizar cálculos a partir de um desenho técnico, incluindo medidas em escala, área em metros quadrados, perímetro, área de desconto e área real.

Assim, esperamos que, ao final, você seja capaz de:

  • Ler desenhos de arquitetura considerando as plantas baixas;
  • Calcular a área a ser pintada.

Situação-problema: Contextualização

Para começar, conheça os desafios que precisará resolver nesta situação-problema.

Imagine que você, como pintor profissional, recebeu um briefingBriefing é um documento que contém as principais informações de um projeto. Ele deve descrever os objetivos para atender às expectativas do cliente. com o seguinte contexto:

Ilustração em forma de ícone que representa um rolo de tinta amarelo. A tinta é azul.

Você foi indicado para realizar um serviço de repintura em um apartamento.

O cliente está fora da cidade e irá fornecer o projeto de planta baixa para que você possa agilizar o orçamento, sem precisar ir ao imóvel.

Ilustração em forma de ícone. Aqui temos uma planta baixa representada de forma bem simples.

O serviço de repintura será de uma única cor e o apartamento está vazio, sem móveis e moradores.

Ilustração em forma de ícone que retrata uma casa azul, bem simples, sendo pintada. Do seu lado esquerdo há um rolo de tinta com a mesma cor em que a casa está sendo pintada: azul-cobalto.

Ilustração em forma de ícone, que demonstra uma folha com cálculos matemáticos, do seu lado direito está uma calculadora e à esquerda, um lápis amarelo.

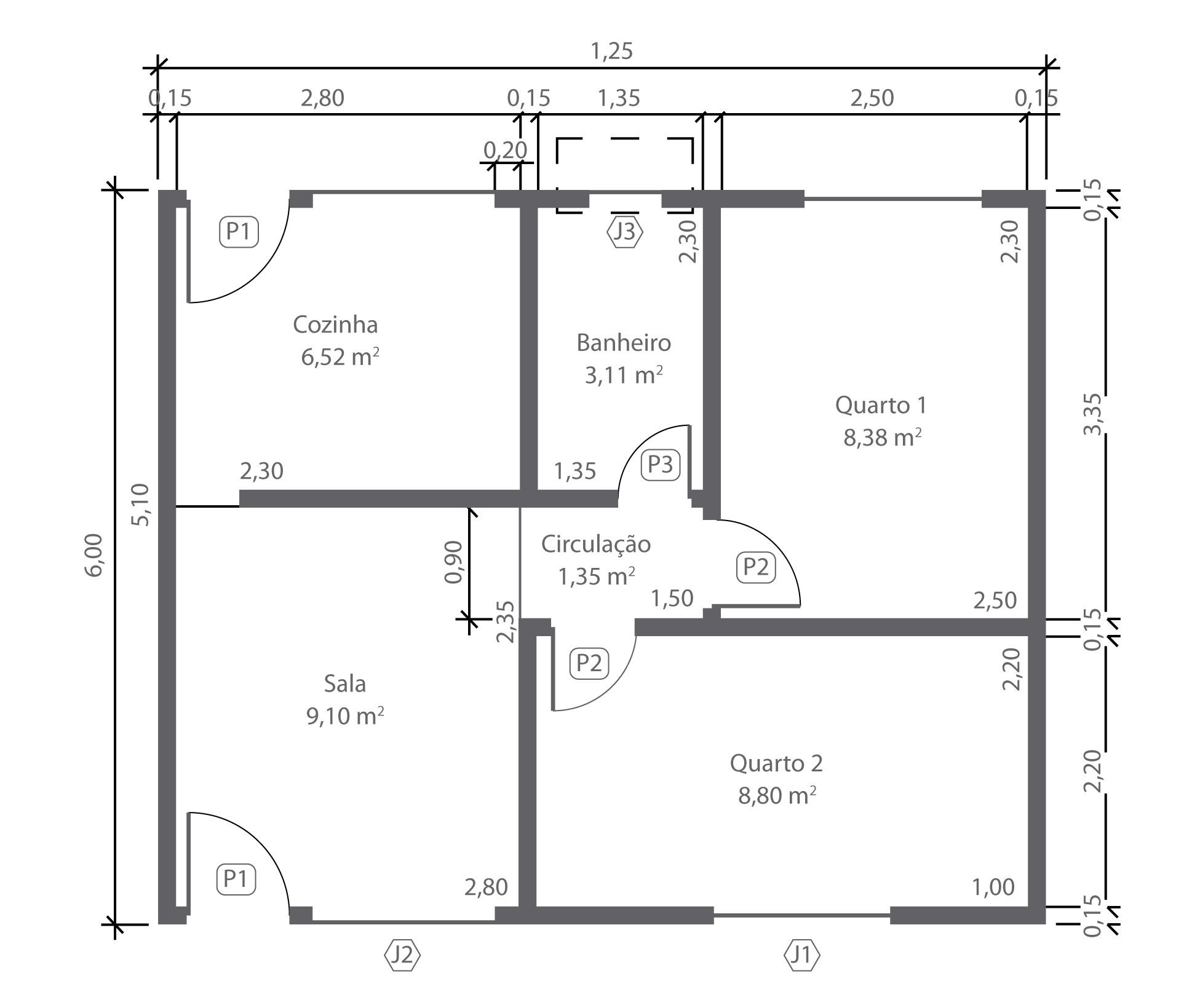
Você deve analisar o projeto de planta baixa para calcular a área em m² de todos os cômodos do apartamento.

Para fazer um orçamento de forma transparente para o cliente, você deve informar a área real a ser pintada, considerando as áreas de desconto.

Ilustração em forma de ícone que representa uma casa azul desenhada em uma folha. Logo abaixo há uma régua.

Desafio

Diante desta situação, você precisará interpretar um projeto de planta baixa e fazer alguns cálculos em cada ambiente. Conheça os detalhes a seguir:

A ilustração representa três montanhas, duas na parte posterior e uma sobressaindo. As três contém neve nos picos e a que está destacada apresenta um bandeira amarela também no pico.

Clique nas abas para mais detalhes.​

Nesta primeira etapa, você deverá interpretar um projeto de planta baixa, identificando todos os cômodos do apartamento do cliente e suas medidas.

Insira em cada ambiente as seguintes informações:

  • Medidas das cotas de cada um dos cômodos do apartamento do cliente;
  • Altura do pé-direito das paredes.

Estas informações serão utilizadas na próxima etapa.

Você já identificou todas as medidas dos cômodos. Nesta segunda etapa, precisará realizar alguns cálculos para disponibilizar as informações ao cliente:

  • Valor total da área em m² de cada ambiente (sem desconto);
  • Valor das áreas de desconto em m² (portas e janelas de todos os ambientes);
  • Valor real da área a ser pintada em m².

A indicação de como realizar desafios estará na página inicial do curso. Siga em frente e estude todo o conteúdo para solucioná-los.

Leitura e interpretação da planta baixa

Você sabe o que é uma planta baixa? Já utilizou uma delas para calcular áreas?

Como pintor profissional, você precisa conhecer as principais características e simbologias de uma planta baixa. Além disso, precisa saber interpretar sua representação gráfica e realizar cálculos a partir dela.

Conhecer e interpretar uma planta baixa é muito importante para que você não perca oportunidades de trabalho.

Para conhecer uma planta baixa e os cálculos relacionados a ela, acompanhe o conteúdo a seguir.

Para que você tenha um melhor aproveitamento dos estudos, faça anotações e realize todos os cálculos junto com os vídeos.

O que é a planta baixa?

Planta baixa é o nome que se dá ao desenho de uma construção. Ela consiste em sua visualização vista de cima, a partir de um corte imaginário à altura de 1,50 m do piso, como você pode observar na imagem a seguir:

Ilustração de casa cortada em duas partes demonstrando o corte horizontal da planta baixa.

Forma e função

A planta baixa é um desenho técnico que tem como principal função representar graficamente uma construção, ou seja, representar uma casa, um apartamento, um salão comercial, uma fábrica, ou qualquer outro tipo de imóvel.

Geralmente, a planta baixa é feita em escala e mostra a relação entre os espaços vistos de cima. Este desenho especifica o posicionamento e o tamanho de cada cômodo de um imóvel.

Representação gráfica e simbologias

Planta baixa é a representação gráfica de um imóvel.

Para realizar a leitura da representação gráfica de um imóvel, é indispensável que você conheça os símbolos utilizados nessa representação.

Assista ao vídeo a seguir para saber mais sobre este conceito, bem como sobre os símbolos utilizados no desenho de uma planta baixa.

Planta baixa e sua simbologia

Como abordado no vídeo, conhecer as informações básicas sobre a planta baixa é fundamental para a execução não só da pintura, mas de todo serviço realizado em imóveis. Estes conhecimentos permitirão que você realize seu trabalho com segurança e profissionalismo, reduzindo erros durante a execução do trabalho.

Tipos de cortes na planta baixa

Grande parte das informações que você precisará para os cálculos de um ambiente estão no corte horizontal da planta baixa – o corte que apresenta a vista superior.

No entanto, o corte vertical também contém informações importantes, como a indicação do pé-direito dos cômodos, por exemplo.

Temos duas ilustrações. À esq. uma casa cortada ao meio, na posição vertical, indicando a altura do pé direito de um cômodo. À dir., uma ilustração mostra um recorte do “miolo” da casa. Há também os dizeres Cortes e a legenda Corte AA.

Outra vantagem do acesso ao corte vertical da planta baixa é que você também visualizará a diferença de nível entre o piso e o teto em cada ambiente do imóvel. Clique na imagem para ampliá-la:

Ilustração de casa cortada ao meio, na posição vertical, com destaque para as indicações das medidas do nível do piso em relação ao chão. O quintal possui nível 0 de altura, a entrada tem nível 0,25, enquanto o banheiro apresenta o nível de 0,50 e a área do box tem nível de 0,48.

Pé-direito

O pé-direito é a medida que indica a distância entre o piso e o teto de uma construção.

Desenho digital de um cômodo, em perspectiva. Entre o teto e o piso há uma cota indicando que esta é a medida do pé direito.

Saber a altura do pé-direito do imóvel a ser pintado é fundamental para o orçamento do seu serviço – e também para a estimativa correta do material para pintura.

Medidas

Cada arquiteto pode determinar a medida do pé-direito de acordo com o projeto, porém o recomendado é que ele tenha entre 2,70m e 3,0m.

Ilustração de casa cortada ao meio, na posição vertical, com destaque para as indicações das medidas do nível do piso em relação ao chão. O quintal possui nível 0 de altura, a entrada tem nível 0,25, enquanto o banheiro apresenta o nível de 0,50 e a área do box tem nível de 0,48.

Onde encontrar

Só é possível obter esta informação na representação gráfica do projeto da planta baixa completa.

Caso você não tenha acesso à planta completa, cabe perguntar ao cliente ou fazer a medição na primeira visita ao imóvel.

Ilustração de casa cortada ao meio, na posição vertical, com destaque para as indicações das medidas do nível do piso em relação ao chão. O quintal possui nível 0 de altura, a entrada tem nível 0,25, enquanto o banheiro apresenta o nível de 0,50 e a área do box tem nível de 0,48.

A medida do pé-direito é indispensável para que que você consiga realizar os cálculos de área e produzir seus orçamentos – incluindo corretamente os custos de mão de obra, dias de execução, volume e quantidade de materiais.

Esta afirmação é verdadeira ou falsa?

Parabéns!

Resposta correta.

Resposta incorreta.

A medida do pé-direto é uma das informações que você precisa para realizar os cálculos de área para produzir seus orçamentos.

 

Você sabia?

Medida em pés

Segundo o engenheiro Manuel Henrique Campos Botelho, a origem da expressão pé-direito se refere à distância medida em pés e na posição direita (em ângulo reto e posição ortogonal) em relação ao plano.

Medida da madeira

Outra interpretação do termo pé-direito é que a palavra pé significaria árvore e direito indicaria algo alinhado em ângulo reto.

Sendo assim, o pé-direito seria a distância entre o chão e o teto de acordo com o tamanho da madeira que faz a sustentação da cobertura.

Altura certa

Para alguns, o termo pé-direito seria um sinônimo de altura certa. No sistema de medidas, um pé é uma unidade que corresponde a 30,48 centímetros.

Por isso, no sentido correto, pé-direito seria usado para indicar a medida usual do solo ao teto.​

Escala da planta baixa

Uma das características da planta baixa é a representação em escala. Mas o que isso significa?

Uma representação em escala é a representação de algo com as medidas reduzidas ou ampliadas. Essa técnica permite manter no projeto suas dimensões reais.

Tanto na ampliação quanto na redução, o objeto reproduzido no desenho técnico tem suas proporções mantidas.

Dessa maneira, o projeto nos dá uma visão do objeto mais próxima do real - já que seria impossível reproduzi-lo em papel.​

A ilustração mostra uma casa em 2D nas cores: areia para as paredes e marrom para os telhados. As janelas são retratadas num azul-acinzentado. No solo, há uma planta baixa representando a casa, como fosse sua sombra.

Veja como as escalas são representadas na planta baixa:

Ilustração de planta baixa destacando a legenda, onde inscreve-se ‘Corte AA’ e escala 1 para 50, sendo 1 a representação de metros na planta baixa e 50 o valor real em metros.

Nessa planta baixa, temos a indicação da escala de 1:50, ou seja, cada 1 centímetro da representação na planta baixa é proporcional a 50 centímetros reais.

Modelos de planta baixa

Agora que você conhece os elementos e as simbologias da planta baixa, observe a presença destes itens em diferentes modelos a seguir:

Antes de clicar para ver a descrição das imagens, tente localizar as informações que você precisaria para realizar a pintura dos espaços.

A imagem apresenta um recorte da planta baixa de um dos cômodos de uma casa. As medidas: A parede à esq. mede 21 m2, a entrada, 16,50 m2, a parede superior, 26 m2 e a de baixo se divide em 11 e 15 m2, sendo que a largura é de 1,60 m.

 

Ilustração de uma planta baixa escalonada, ou seja, com as medidas de cada cômodo da residência.

 

Ilustração de uma planta baixa com a representação de todo o mobiliário da residência, tendo detalhado em cada cômodo e qual espaço ocupa.

Reflita

Na sua opinião, seria possível produzir um orçamento de pintura a partir dessas plantas baixas? Quais informações adicionais cada uma delas necessitaria? Quais cotas faltaram em cada uma delas?

Atente-se a todos os detalhes da planta baixa fornecida. Caso ela não seja um modelo completo, solicite as informações ao cliente. Lembre-se: elas são fundamentais para que você consiga realizar os cálculos do orçamento.

E por falar em cálculos, vamos a eles?

A seguir, você aprenderá a realizar os cálculos para identificar os valores em metros quadrados dos ambientes de pintura.

Como calcular a área em m²

Agora que você já conhece a planta baixa, seus símbolos, medidas e como calcular as escalas, é hora de iniciar os cálculos de área em metros quadrados.

 

Atenção a estes cálculos: eles serão fundamentais para você solucionar o desafio inicial.

A ilustração mostra duas montanhas, uma sobreposta a outra. Ambas são de cor mostarda, sendo que a neve em seus picos é em amarelo. Na maior, há uma bandeira cor-de-rosa, sendo que ao seu lado há um bonequinho representando que finalmente ele chegou lá.

Ilustração é um ícone que retrata uma casa, sendo que na sua lateral direita e a parte inferior há uma seta com duas pontas, que significam metragem.

 

Vamos começar acessando o vídeo sobre como calcular a área de um cômodo e suas áreas de desconto, a partir das medidas da base e altura.

Faça os cálculos junto com o vídeo. Se precisar, dê pause e vá acompanhado o passo a passo.

Como calcular a área em metros quadrados e perímetro

Como você se saiu nos cálculos?

Caso tenha tido dificuldades, siga treinando.

Você pode medir um cômodo da sua casa, por exemplo, e fazer os cálculos.

Revisão de fórmulas

Para exercitar os cálculos vistos até aqui, realize a medição de ambientes em sua casa utilizando as fórmulas que aprendeu nesta aula:

  • Cálculo de área em m²
  • Cálculo do perímetro
A ilustração é uma folha de anotação em azul e está pendurada em uma parede por fita adesiva.

*para obter o valor da área em m², deve-se multiplicar o perímetro pela altura do pé-direito.

DICA!

Anote ou imprima as fórmulas, para tê-las sempre à mão. Independente do ambiente a ser pintado, as fórmulas que você utilizará para calcular áreas quadradas e retangulares serão sempre essas que apresentamos.

Cálculo da área de desconto e da área real

Chegamos à parte mais simples dos cálculos. Nesta etapa, utilizaremos a fórmula de cálculo de área em metros quadrados para medir portas, paredes ou quaisquer áreas que deverão ser descontadas do cálculo da área total.

Essas áreas descontadas chamamos de áreas de desconto, pois não serão incluídas nos serviços de pintura.

A área real, por sua vez, é a subtração das áreas de desconto do valor da área total, aquela que aprendemos a calcular no vídeo anterior.

Acompanhe o vídeo a seguir, realizando os cálculos indicados para aprender como chegar aos valores que serão utilizados no orçamento do cliente em seu desafio inicial.

Como calcular a área de desconto e a área real

Exercite esses cálculos para que você sinta segurança ao aplicá-los no orçamento de um cliente. Os valores das áreas total, de desconto e real são muito importantes, pois permitem que você calcule o volume e a quantidade de materiais com mais precisão. Isso evita sobras ou falta de materiais ao final do seu serviço de pintura.

Agora prossiga nos exercícios e verifique seus conhecimentos obtidos até o momento. Boa sorte!

Colocando em prática

1. Qual a importância do pintor imobiliário saber calcular o valor total de uma área em m²?

 

2. Leia as afirmações com atenção e selecione (V) para as verdadeiras e (F) para as falsas.

  V F
a. O pé-direito é a medida que indica a distância entre o piso e o teto de uma construção.
b. Nem toda planta baixa é considerada uma representação gráfica.
c. As escalas permitem manter no projeto as dimensões angulares reais do objeto.
d. O cálculo de área em m² (base × altura) pode ser substituído pelo cálculo do perímetro (L × L × altura do pé-direito).
e. As áreas de desconto são os descontos possíveis no orçamento para o cliente.

 

3. Agora que já sabemos calcular a área total (teto e paredes), área de desconto (portas e janelas) e a área real em m² (área a ser pintada), vamos praticar mais um pouco. Calcule a área em m² e assinale a alternativa com as respostas corretas.

A ilustração representa a planta baixa de um dos cômodos de uma casa.

Parabéns!

Resposta correta.

Ops! Tente novamente.

Você não analisou corretamente as afirmativas.

Resposta incorreta.

O cálculo da área total serve para calcular o orçamento para o cliente e assegurar que você tenha precisão e transparência no orçamento. ​

Atenção!

Escolha uma das alternativas para continuar!

Parabéns!

Resposta correta.

Ops! Tente novamente.

Você não analisou corretamente as afirmativas.

Resposta incorreta.

A afirmativa b é falsa. Toda planta baixa é uma forma de representação gráfica, pois serve para representar um projeto arquitetônico. A afirmativa e é falsa. As áreas de desconto são as áreas que não serão incluídas nos serviços de pintura.

Atenção!

Escolha uma das alternativas para continuar!

Parabéns!

Resposta correta.

Ops! Tente novamente.

Você não analisou corretamente as afirmativas.

Resposta incorreta.

Utilize a fórmula do cálculo de área (AM²= B x H) para obter o valor da área total e das áreas de desconto. Com os valores calculados, subtraia o valor da das áreas de desconto do valor da área total para chegar ao valor da área real.​

Atenção!

Escolha uma das alternativas para continuar!

Recapitulando

Parabéns, você chegou ao final dos estudos sobre leitura de planta baixa e cálculo de área!

Você aprendeu a ler e a interpretar projetos de planta baixa, incluindo seus símbolos e projeções.

Além disso, aprendeu a realizar cálculos para identificar o valor da área total em m², da área real e da área de desconto, compreendendo suas fórmulas e em quais situações serão utilizadas.

Esperamos que tenha tido um bom aproveitamento – e que o aprendizado contribua para seu desempenho nas futuras atividades como pintor imobiliário.

Até breve!

Apoiadores:

Referências

ANDRADE, L. A. B. Desenho técnico de edificações: Construção Civil. 1. ed. São Paulo: Editora Senai-SP, 2017.

COMO usar um escalímetro? Aprenda no nosso passo a passo! Grafitti, 20 mar. 2018. Disponível em: https://blog.grafittiartes.com.br/como-usar-um-escalimetro-aprenda. Acesso em: 2 dez. 2021.

CRUZ, Talita. Quando usar pé-direito duplo? Descubra e inspire-se com 31 ambientes sensacionais. Viva Decora , 2 jan. 2020. Disponível em: https://www.vivadecora.com.br/pro/arquitetura/pe-direito/. Acesso em: 2 dez. 2021.

CURIOSIDADE: pé-direito x pé-esquerdo. FKSA – Arquitetura | Design, 27 abr. 2018. Disponível em: https://www.fksa.com.br/post/2018/04/27/curiosidade-pe-direito-x-pe-esquerdo. Acesso em: 12 jul. 2021.

DESENHO de arquitetura: cortes. Slideshare, 4 nov. 2013. Disponível em: https://pt.slideshare.net/caliandradesenhos/cortes-27883031. Acesso em: 12 jul. 2021.

GOMES, Adriano Pinto. Desenho arquitetônico. 1. ed. Ouro Preto: Ministério da Educação, 2012. p. 15-67.

LEITURA e interpretação de desenho técnico. TXRBR. Disponível em: https://txrbr.com/curso/st/Fundamentos_da_SST/desenho-tecnico.html. Acesso em: 12 jul. 2021.

PROJETO em escala real no ambiente utilizando realidade aumentada com aplicativo augin. [S.l.: s.n.], 2020. 1 vídeo (1 min). Publicado pelo canal Augin. Disponível em: https://www.youtube.com/watch?v=_eFXDwFxjLo. Acesso em: 2 dez. 2021.

Créditos

SENAI - DEPARTAMENTO REGIONAL DE SÃO PAULO

Ricardo Figueiredo Terra
Diretor Regional

Cassia Regina Souza da Cruz
Gerente de Educação

Izabel Rego de Andrade
Supervisora Educação Online

Adriane Treitero Cônsolo
Coordenação do Desenvolvimento do Curso

Flávia Dos Santos Silveira
Design Educacional

Nilton Guimaraes de Sousa
Valter de Almeida Pereira
Desenvolvimento de Conteúdo

Adilson Moreira Damasceno
Paula Cristina Bataglia Buratini
Coordenação da Produção do Curso

Fabiano Moura
Luiz Tadeu Silva Sansone
Ilustrações

Aldo Toma Junior
Jaqueline Eiri Kono
Juliana Rumi Fujishima
Locução

Camila Ciarini Dias
Ederson Guilherme Antônio Silva
Fabio Augusto Lopes da Silva
Produção Multimídia

Rafael Santiago Apolinário
Programação

Carla Moreira Kinzo
Jeferson Paiva
Juliana Rizzuto
Revisão

Orientações de Navegação

Veja abaixo as orientações de como navegar pelo curso.

Aqui é exibido o título do curso

Pintor Imobiliário

Barra de Progresso

Botões de navegação

  Menu - Clique para exibir/ocultar o menu

  Home - Clique para retornar à primeira tela

  Ajuda - Orientações de navegação

  Fonte - Para aumentar tamanho da fonte

  Contraste - Recurso alto-contraste

  Acesso - Clique para exibir/ocultar os botões de navegação (mobile)

Título da Seção

Título

Páginas do curso

Aviso

Parece que você já iniciou o curso, você pode: